Bạn đang tìm kiếm mặt bằng căn hộ 1 phòng ngủ đẹp và tiện nghi để tối ưu không gian sống? Bài viết này sẽ cung cấp các mẫu thiết kế thông minh, giải pháp bố trí nội thất đa năng, cùng bí quyết tận dụng ánh sáng tự nhiên, giúp bạn biến căn hộ nhỏ thành tổ ấm hiện đại, thoải mái, phù hợp cho cả người độc thân và vợ chồng trẻ.
I. Khái niệm và đối tượng phù hợp của căn hộ 1 phòng ngủ
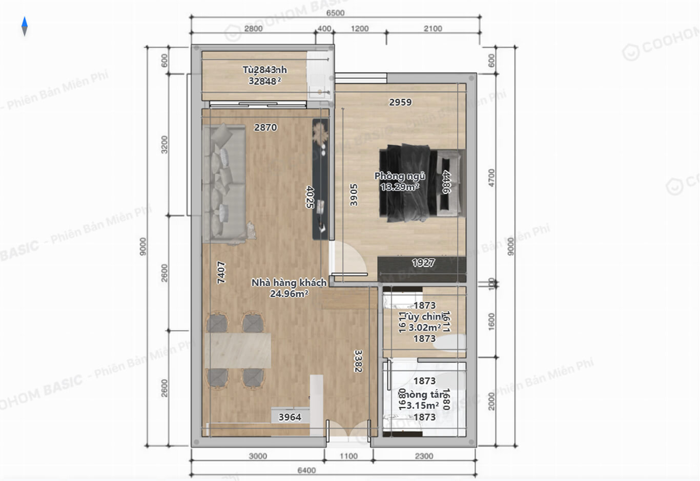
Căn hộ 1 phòng ngủ là loại hình nhà ở có thiết kế bao gồm một phòng ngủ riêng biệt, phòng khách, bếp và nhà vệ sinh. Diện tích lý tưởng của các mẫu căn hộ này thường dao động từ 45m2 đến 55m2 tùy theo dự án và nhu cầu sử dụng.

Phân biệt rõ với căn hộ studio, loại hình này tạo ra sự riêng tư cần thiết giữa khu vực nghỉ ngơi và sinh hoạt chung, mang lại cảm giác thoải mái hơn cho cư dân.
Tại các thành phố lớn, căn hộ 1 phòng ngủ được xem là lựa chọn thông minh nhờ vào tính tiện dụng và giá thành hợp lý. Các dự án như Vũng Tàu Pearl đang phát triển mạnh mô hình này, kết hợp giữa nghỉ dưỡng và sinh sống, phù hợp cho cả người mua để ở lẫn đầu tư.
Căn hộ 1 phòng ngủ: định nghĩa và diện tích lý tưởng

Về cơ bản, mặt bằng căn hộ 1 phòng ngủ thường được chia tách rõ ràng giữa các khu vực sinh hoạt. Với diện tích khoảng 50m2, người ở có thể bố trí một phòng khách liền bếp, ban công nhỏ và phòng ngủ riêng biệt.
Những căn hộ diện tích lớn hơn (45–55m2) thường có thêm không gian làm việc hoặc góc đọc sách, tạo cảm giác tiện nghi và hiện đại. So với căn hộ studio, cấu trúc tách biệt này giúp hạn chế tiếng ồn và tăng tính riêng tư.
Ai nên chọn mặt bằng căn hộ 1 phòng ngủ

Đối tượng phù hợp nhất cho loại hình này là người độc thân, các cặp vợ chồng trẻ hoặc chuyên gia làm việc tại đô thị. Ngoài ra, nhiều nhà đầu tư chọn mua mặt bằng căn hộ 1 phòng ngủ để cho thuê ngắn hạn nhờ nhu cầu cao từ du khách hoặc người đi công tác.
Tại Vũng Tàu Pearl, các căn hộ 1PN được tối ưu view biển và thiết kế thông minh, phù hợp cho mô hình nghỉ dưỡng hoặc đầu tư sinh lời.
II. Ưu điểm vượt trội và hạn chế của căn hộ 1 phòng ngủ
Ưu điểm nổi bật khi sở hữu căn hộ 1 phòng ngủ tiện nghi

Căn hộ 1 phòng ngủ nổi bật ở tính kinh tế, linh hoạt và dễ bảo trì. Chi phí đầu tư ban đầu thấp hơn 20–30% so với căn hộ 2PN cùng phân khúc, giúp người mua dễ dàng tiếp cận hơn. Không gian nhỏ gọn giúp tiết kiệm thời gian dọn dẹp và tối ưu chi phí điện nước.
Ngoài ra, với thiết kế mở, căn hộ vẫn đảm bảo đầy đủ tiện ích sống như hồ bơi, gym, khu BBQ tại các dự án hiện đại.
Về nội thất, loại hình này cho phép áp dụng phong cách tối giản hoặc hiện đại, tận dụng tối đa diện tích. Nhiều dự án đã tích hợp smart home, điều khiển ánh sáng và nhiệt độ bằng ứng dụng điện thoại, mang đến trải nghiệm sống tiện nghi cho cư dân.
Đặc biệt, tại các dự án như mặt bằng chi tiết Vũng Tàu Pearl, bố trí khoa học giúp tận dụng tối đa ánh sáng tự nhiên, nâng cao chất lượng sống.
Những hạn chế cần biết khi chọn mặt bằng căn hộ 1 phòng ngủ

Mặc dù tiện lợi, căn hộ 1 phòng ngủ vẫn có một số hạn chế nhất định. Khi gia đình có thêm thành viên, không gian sinh hoạt có thể trở nên chật hẹp. Việc lưu trữ đồ đạc nếu không có giải pháp thông minh dễ khiến căn hộ rối mắt và bí bách.
Để khắc phục, nên sử dụng các thiết kế tủ âm tường, giường gấp hoặc bàn đa năng nhằm tối ưu diện tích.
Bên cạnh đó, khả năng mở rộng hoặc thay đổi cấu trúc căn hộ thường bị giới hạn do quy hoạch cố định. Vì vậy, người mua cần cân nhắc kỹ về nhu cầu sử dụng lâu dài trước khi lựa chọn. Tuy nhiên, nếu mục tiêu là đầu tư hoặc sinh sống ngắn hạn, căn hộ 1 phòng ngủ vẫn là lựa chọn hợp lý nhờ tính linh hoạt và chi phí thấp.
III. Các mẫu mặt bằng căn hộ 1 phòng ngủ phổ biến hiện nay
Mặt bằng căn hộ 1 phòng ngủ có ban công: tối ưu không gian và tầm nhìn

mặt bằng căn hộ có ban công luôn được ưa chuộng bởi khả năng mở rộng không gian sống và tăng giá trị thẩm mỹ. Ban công có thể được tận dụng để phơi đồ, trồng cây hoặc bố trí ghế thư giãn. Thiết kế này giúp không khí trong lành hơn và đón ánh sáng tự nhiên vào phòng khách.
tại căn hộ một phòng ngủ Vũng Tàu Pearl, phần ban công hướng biển là điểm nhấn giúp tăng giá trị đầu tư. Đây cũng là yếu tố được nhiều người mua ưu tiên khi lựa chọn căn hộ để ở hoặc cho thuê nghỉ dưỡng.
Thiết kế căn hộ 1 phòng ngủ không gian mở: rộng rãi và hiện đại

Các căn hộ 1 phòng ngủ thiết kế theo không gian mở thường bố trí phòng khách liền bếp để tạo cảm giác liền mạch, thoáng đãng. Cách thiết kế này giúp ánh sáng lan tỏa đều và loại bỏ các vách ngăn không cần thiết. Với màu sắc trung tính, điểm nhấn nội thất đơn giản, căn hộ trở nên hiện đại và dễ phối hợp.
Tại Vũng Tàu Pearl, xu hướng này được áp dụng mạnh mẽ nhằm đáp ứng nhu cầu của giới trẻ và nhà đầu tư. Bố trí này không chỉ tối ưu diện tích mà còn thể hiện phong cách sống năng động, hiện đại.
Mặt bằng căn hộ 1 phòng ngủ có gác lửng: giải pháp mở rộng không gian hiệu quả
Đối với các căn hộ trần cao, việc thiết kế thêm gác lửng là giải pháp lý tưởng để tăng diện tích sử dụng. Gác có thể dùng làm phòng ngủ, góc làm việc hoặc khu đọc sách, giúp không gian thêm linh hoạt.
Tuy nhiên, khi lựa chọn kiểu mặt bằng này, cần chú ý đến độ cao thông thủy và kết cấu chịu lực để đảm bảo an toàn và tiện nghi.
Một số dự án ở ven biển đã thử nghiệm mô hình căn hộ có gác lửng nhằm phục vụ khách lưu trú ngắn hạn, mang lại cảm giác độc đáo và ấm cúng. Thiết kế này đặc biệt phù hợp với người trẻ yêu thích sự sáng tạo trong không gian sống.
IV. Nguyên tắc thiết kế nội thất cho căn hộ 1 phòng ngủ
Nguyên tắc bố trí không gian thông minh cho căn hộ 1 phòng ngủ





Bố trí không gian thông minh là yếu tố quyết định cảm giác rộng rãi và tiện nghi trong căn hộ 1 phòng ngủ. Thay vì phân chia nhiều vách ngăn, kiến trúc hiện đại ưa chuộng không gian mở, kết hợp phòng khách và bếp thành một tổng thể liền mạch.
Việc sắp xếp theo nguyên tắc tam giác giữa bếp – bàn ăn – phòng khách giúp tối ưu di chuyển và tận dụng ánh sáng tự nhiên.
Để tạo cảm giác căn hộ lớn hơn, người thiết kế thường chọn gam màu sáng, gương phản chiếu và rèm mỏng để tăng chiều sâu thị giác. Đây là những giải pháp phổ biến trong các căn hộ tại Vũng Tàu Pearl, nơi từng chi tiết được tính toán kỹ lưỡng để nâng cao trải nghiệm sống.
Giải pháp lưu trữ thông minh và nội thất đa năng
Với căn hộ 1 phòng ngủ, lưu trữ luôn là bài toán khó. Nội thất đa năng như giường gấp, bàn ăn mở rộng hay tủ âm tường là những giải pháp hiệu quả giúp tiết kiệm không gian. Ngoài ra, việc tận dụng chiều cao tường với kệ treo và ngăn chứa ẩn dưới sàn cũng là cách hữu ích để tăng diện tích sử dụng.
Sử dụng các chất liệu nhẹ, dễ di chuyển như gỗ công nghiệp hoặc kim loại sơn tĩnh điện vừa đảm bảo tính thẩm mỹ vừa tối ưu chi phí.
Trong các mẫu mặt bằng căn hộ 1 phòng ngủ nhỏ, đồ nội thất đa năng còn giúp người ở thay đổi linh hoạt công năng theo từng thời điểm, ví dụ biến bàn làm việc thành bàn ăn hoặc sofa thành giường ngủ phụ.
Tối ưu hóa ánh sáng tự nhiên và thông gió
Ánh sáng tự nhiên không chỉ giúp căn hộ sáng sủa mà còn tiết kiệm điện năng. Thiết kế cửa sổ lớn, ban công mở rộng và sử dụng vật liệu kính giúp căn hộ đón ánh sáng tối đa. Khi kết hợp với gương trang trí, ánh sáng được phản xạ nhiều hướng, tạo hiệu ứng mở rộng không gian.
Bên cạnh đó, hệ thống thông gió tự nhiên qua cửa sổ hoặc giếng trời giúp không khí lưu thông, tránh ẩm mốc và mùi hôi. Các dự án ven biển như Vũng Tàu Pearl thường tận dụng luồng gió biển để mang lại cảm giác mát mẻ và dễ chịu quanh năm.
V. Kinh nghiệm chọn mua mặt bằng căn hộ 1 phòng ngủ ưng ý
Tiêu chí đánh giá mặt bằng căn hộ 1 phòng ngủ hoàn hảo
Một mặt bằng căn hộ 1 phòng ngủ được xem là hoàn hảo khi đáp ứng đầy đủ các yếu tố về hướng, tầm nhìn, công năng và phong cách. Căn hộ nên có cửa sổ hoặc ban công đón ánh sáng, không gian bếp tách biệt hợp lý và phòng ngủ có khả năng cách âm tốt.
Bên cạnh đó, nên chọn dự án có hệ thống tiện ích nội khu đồng bộ để gia tăng giá trị sử dụng lâu dài.
Theo kinh nghiệm thị trường quý III/2025, các dự án nằm gần biển hoặc trung tâm du lịch như Vũng Tàu Pearl luôn có tỷ lệ lấp đầy cao nhờ vị trí đắc địa và thiết kế tối ưu. Ngoài ra, người mua nên so sánh bố cục phòng và hướng nắng để tránh sai lầm khi chọn căn hộ thiếu sáng hoặc bí gió.
Những lưu ý pháp lý quan trọng khi mua căn hộ 1 phòng ngủ
Trước khi ký hợp đồng, người mua cần kiểm tra kỹ hồ sơ pháp lý của dự án bao gồm giấy phép xây dựng, hợp đồng mua bán, tiến độ bàn giao và quyền sở hữu. Đối với loại hình căn hộ du lịch như tại Vũng Tàu Pearl, thời hạn sở hữu là 50 năm, người mua ký trực tiếp với chủ đầu tư Hưng Thịnh.
Điều này đảm bảo tính minh bạch, giúp người mua an tâm trong quá trình chuyển nhượng hoặc cho thuê. Ngoài ra, nên đọc kỹ các điều khoản về phí quản lý, bảo trì và điều kiện sử dụng tiện ích để tránh phát sinh chi phí không mong muốn sau khi bàn giao.
VI. Các dự án nổi bật có mặt bằng căn hộ 1 phòng ngủ

Dự án Vũng Tàu Pearl: căn hộ 1 phòng ngủ du lịch 50 năm
Vũng Tàu Pearl là dự án căn hộ du lịch nổi bật thuộc tập đoàn Hưng Thịnh, tọa lạc tại vị trí vàng cách bãi Sau chỉ vài phút di chuyển. Dự án được cấp phép sở hữu 50 năm và không có sổ hồng lâu dài do thuộc loại hình condotel.
Các căn hộ 1 phòng ngủ tại đây có diện tích phổ biến từ 45m2 đến 55m2, thiết kế ban công hướng biển, phòng khách liền bếp và nội thất bàn giao cao cấp.
Điểm mạnh của dự án nằm ở hệ thống tiện ích khép kín gồm hồ bơi vô cực, gym, spa, sky bar và trung tâm thương mại. Ngoài ra, Vũng Tàu Pearl còn được đánh giá cao nhờ vị trí giao thông thuận lợi, cách cao tốc Biên Hòa – Vũng Tàu chỉ 5 phút di chuyển, thuận tiện cho cả nghỉ dưỡng và đầu tư cho thuê ngắn hạn.
Khám phá các dự án căn hộ 1 phòng ngủ nổi bật khác

Bên cạnh Vũng Tàu Pearl, thị trường 2025 ghi nhận sự phát triển của nhiều dự án có mặt bằng căn hộ 1 phòng ngủ hiện đại tại TP.HCM, Bình Dương và Nha Trang. Các dự án này đều hướng đến khách hàng trẻ, chú trọng không gian mở, tiện ích thông minh và thiết kế thân thiện với môi trường.
Khi so sánh, có thể thấy Vũng Tàu Pearl vẫn chiếm ưu thế nhờ yếu tố nghỉ dưỡng và pháp lý rõ ràng. Người mua nên tham khảo thêm tại căn hộ hai phòng ngủ hoặc căn hộ ba phòng ngủ để hiểu rõ hơn về các lựa chọn trong cùng dự án.
VII. Các câu hỏi thường gặp
Câu hỏi số 1: Căn hộ 1 phòng ngủ có diện tích bao nhiêu là hợp lý
Trả lời: Diện tích lý tưởng khoảng 45m2 đến 55m2, đủ cho một người hoặc cặp đôi sinh hoạt thoải mái, bố trí đầy đủ tiện ích cơ bản.
Câu hỏi số 2: Có nên chọn căn hộ 1 phòng ngủ có ban công không
Trả lời: Có, vì ban công giúp căn hộ đón gió, lấy sáng tự nhiên và tăng không gian thư giãn, rất phù hợp với khí hậu Việt Nam.
Câu hỏi số 3: Làm sao để căn hộ 1 phòng ngủ trông rộng rãi hơn
Trả lời: Sử dụng gam màu sáng, gương phản chiếu và nội thất gọn gàng giúp không gian có chiều sâu và thoáng hơn.
Liên hệ ngay để được tư vấn & xem căn thực tế
- Hỗ trợ xem căn trực tiếp
- Tư vấn pháp lý condotel, chuyển nhượng nhanh
- Cam kết thông tin minh bạch – hỗ trợ tận tâm
- Hotline : 078 456 4567 ( Văn Tài )
- Hotline: 093 123 1241 Zalo (Trần Thu)
- Xem video dự án: Tại đây
- Website chính: www.vungtaupearl.net
- Email: contact@vungtaupearl.net

















